(+995 598) 56 28 28
geo
eng
მთავარი
კომპანია
პროექტები
მიმდინარე
დასრულებული
ბინის არჩევა
კონტაქტი
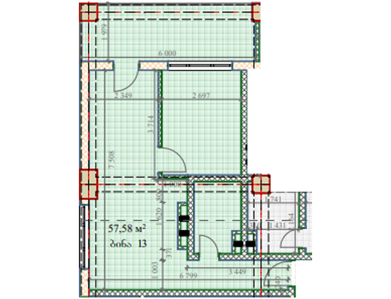
|აპარტამენტი 57.6m²
სრული ფართი.: 57.6 m²
მისაღები.:9.6 m²
საძინებელი .:11.9 m²
საძინებელი 2 .:9.6 m²
კორიდორი .:5.8 m²
აბაზანა.:4.5 m²
ბალკონი .:7.4 m²